いぐねこ設計事務所で働いていた頃、構造計算の期間は常に納期との戦いでした。
夜遅くまで残業することは日常茶飯事。
図面作成には細部にわたる専門知識が必要で時間もかかります。
特に忙しい時期には、週末や祝日も返上し、休む暇もなくプロジェクトに没頭していました。
いぐねこ図面作成の手伝いをしてくれる人がいたらどんなに良いだろう?と思うことが度々。
この記事では、建築構造図面の製作と補助サービスについて、その詳細と提供する価値についてご紹介します。

- 会社員から独立して個人事業主になりました
- 法人企業と仕事のやり取りする個人事業主です
- 個人事業主で準備したことを記事でご紹介しています
この記事の目次
建築構造分野での私のスキルと経験
はじめに私の自己紹介からです。
いぐねこ初めまして、個人事業主のIGUS構造と申します。
建築業界での15年以上にわたるキャリアは、多岐にわたるプロジェクトと経験を通じて形成されました。
- 2006年リフォーム会社に入社
- 営業担当:1年3か月勤務
- 設計への情熱から、設計ができる環境を求め退職
- 2007年建築設計事務所に転職
- 構造設計担当:9年7か月勤務
- 見習いから実践的なスキルを磨きました
- 2017年工務店に転職
- 構造設計担当:3年8か月勤務
- 耐震等級3の住宅設計などを担当
- 2021年個人事業主として新たな挑戦を開始
- 法人や個人事業主の図面をお手伝いしています
- 資格
- 二級建築士(一級建築士取得を目指しましたが、持病の悪化により断念)
- 使っているCADソフト
- JWCAD
過去のプロジェクト内容
- 設計事務所での経験を通じて、「構造設計・構造図面作成・耐震診断・耐震改修」などの補助を500棟以上のプロジェクトで行いました。
- 小規模建物から大規模建物まで、幅広いタイプの建築物の設計業務を経験。
- チーム体制と役割
- プロジェクトにより1~5人のチームで作業。その規模や内容に応じて柔軟に対応。
- 管理職としての役割を担い、作業の振り分けや設計スケジュールの管理を行うと同時に、担当者としても実務。
- 目的達成のための課題
- 多様な規模の建築物に対応するため、各種設計技術と知識の幅広い取得が必要でした。
- 複数のプロジェクトを同時に進行させるために、効率的なスケジュール管理が求められました。
- 構造計算や耐震診断、改修など専門的な業務を、非専門家にもわかりやすく伝える能力の習得が重要でした。
- 課題への取り組み
- 継続的な自己学習により、建築物の規模に応じた技術や知識を身につけました。
- プロジェクトの優先順位を明確にし、効率的なタスクとスケジュール管理を実施。
- 構造計算や耐震診断の結果、改修の必要性を一般の人々にも理解できるよう、わかりやすい資料を作成しました。
- ビジネス上の成果
- 構造設計、図面作成、耐震診断、改修を多数手掛け、全てを期限内に完了。
- 効率的なスケジュール管理により、プロジェクト遅延を大幅に減少。
- クライアントとの信頼関係を築くため、言葉で伝えにくい内容を資料で明確に説明し、高い評価を得ました。
建築構造図面の作成補助サービスの特徴と金額

木造構造図、鉄骨造構造図、鉄筋コンクリート造構造図、構造詳細図などの骨組み図面サービスを提供しています。
- 手描きの構造図面(画像他)をCADデータ化
- 既存構造図面をCADデータ化
使用ソフト・納品データ
- 使用ソフト:JWCAD
- 納品データ:PDF, jww
- 構造図面(申請図面など)の作成
- 部材指定や構造計算書がある場合
- 木造や鉄骨造などの見積用図面
- 構造計算書の添付が必要ない規模
- 文字、寸法、縮尺などの修正
使用ソフト・納品データ
- 使用ソフト:JWCAD
- 納品データ:PDF, jww
いぐねこ1枚からのご依頼でも大丈夫です。
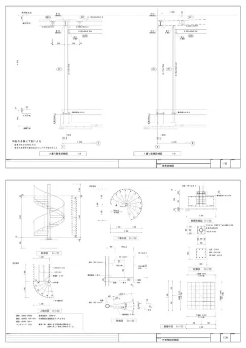
①木造構造図の仕上がりイメージ
いぐねこ凡例や図面の描き方など、ご要望がある場合も対応しております。
図面につきましては完成図ではなく、イメージ図として作成した図面になります。




②鉄骨造構造図の仕上がりイメージ
いぐねこ凡例や図面の描き方など、ご要望がある場合も対応しております。
図面につきましては完成図ではなく、イメージ図として作成した図面になります。





③鉄筋コンクリート造構造図の仕上がりイメージ
いぐねこ凡例や図面の描き方など、ご要望がある場合も対応しております。
図面につきましては完成図ではなく、イメージ図として作成した図面になります。

伏図・軸組図

部材リスト・架構詳細図
建築構造図面の作成補助サービスのメリット
以下のようなお困りごとを解決することができます。
- 構造計算後に図面までの余裕や納期に間に合わない場合などに
- 調査建物用の既存図面が見えにくい場合や調査後の図面復元に
- 次の仕事までのタイミングに図面が必要な場合などに
- 急な修正が入り図面修正まで手がまわらない場合などに
- 社員や外注先が忙しい場合などに
- 土日祝の作業代行に
設計事務所に勤務しているときに、困ったことがある内容です。
とくに現在のプロジェクトと同時に他図面を作成が必要な場合に便利のサービスです。
その他、様々なケースでも対応可能です。
サービス内でできないこと
- 資料確認後、詳細な「構造計算・耐震診断・耐震補強・部材検討」が必要な場合
- 意匠図面の「計画・設計・作図」
(意匠図のトレースはできます) - 作図支援サービスのため「計画・設計検討・押印」はできません
見積からのご利用までの流れ【ココナラの場合】

ココナラのサービスは無料で利用できますが、会員登録が必要になります。
- オンラインで完結できる
- 打合せや電話をしなくて良く、チャットで完結
- チャットを通じたやり取りが簡単で迅速
- メールより効率的なところ
- プラットフォームの信頼性
- お支払いの選択肢と安全性、サービス管理の簡素化
- 個人のお客様もご利用できるように
このようなことを考慮して、現在はココナラでのご案内をしています。

登録方法は5つの内容が用意されています。
- Googleで登録
- Yahoo!JAPAN ID で登録
- Facebookで登録
- Appleで登録
- メールアドレスで登録
①見積り相談からご利用いただけます

入力事項
- 相談タイトル
- 購入者の業種(任意)
- ターゲット像(任意)
- 希望の色イメージ(任意)
- 納品ファイル形式(任意)
- 商用利用・著作権譲渡の希望(必須)
- 相談の目的・背景・追加情報(必須)
- 添付資料、URL(任意)
- 予算、提案期限、納品希望日(必須)
- 内容に不明点がある場合は、質問をさせていただいております
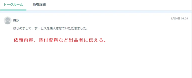
サービス購入後は、トークルームからチャットでのやりとりになります

②サービスをご利用する場合
ココナラでは、お支払い方法が5つ用意されています。
- クレジットカード
- 携帯キャリア
- コンビニ払い
- 銀行振込
- PayPal
金額確認後にサービスを購入しますと、以下のようなトークルームが開きます。
購入後はトークルームでやりとり

よくある質問につきまして
こちらの内容は、随時更新しております。
サービスのご依頼はこちらから

過去に数件、ご依頼をいただいたこともありますので、依頼者様の「評価・感想」も確認できます。
- ご依頼内容
- ご希望の納期や予算
- 既存図面や手描きの資料(PDF、写真等)
- 希望納品データ形式
- その他ご要望があれば教えてください
内容を確認しまして、納期と金額をご提示いたします。
個人で仕事をしていますので、「平日・土日祝」でも対応可能です。
以下のプラットフォームから内容をお知らせください。
スキルマーケット
- ココナラ:https://coconala.com/users/3795436
- ランサーズ:https://www.lancers.jp/profile/igskou
- STUDIO UNBUILT:https://www.studiounbuilt.com/architects/10411

